JournalismPlus JournalismPlus
  • Front Page
  • Investigations
    Denser development and further legal uncertainty after policy manoeuvres designed to circumvent court decisions
    22 July 2025
    Swordfish scarcity in the central Mediterranean intensifies amid uncertainty surrounding recovery plan
    14 March 2024
    The PN’s rising star and the grand birthday bash
    5 September 2023
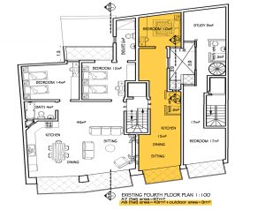
    Almost third of flats in block partly belonging to Minister and family of PN MP smaller than minimum size required
    16 May 2023
    Development permit for controversial block of flats granted on land registered using wrong information
    17 March 2023
    Previous Next
  • Analysis
    Government gives bird trappers a probable last season
    20 October 2025
    Legal opinion: are the policy manoeuvres on number of floors and building heights legal?
    16 July 2025
    Magisterial inquiries: how would the prime minister weaken an already weak law?
    28 December 2024
    trammel net fishing Mediterranean ‘The rate of change is very fast and confusing’ – marine biologist on ecological impact of warming seas
    26 November 2024
    I am voting against Labour nationally, but for Labour locally
    5 June 2024
    Previous Next
  • Rule of Law
    Denser development and further legal uncertainty after policy manoeuvres designed to circumvent court decisions
    22 July 2025
    Magisterial inquiries: how would the prime minister weaken an already weak law?
    28 December 2024
    Is there a right to be heard in a magisterial inquiry as suggested by the present and former prime ministers?
    8 May 2024
    Government’s political pressure on judiciary intensifies crises in court and undermines rule of law
    11 July 2023
    As the first man accused of femicide challenges law in the constitutional court, what are the implications?
    13 April 2023
    Previous Next
  • Special Reportage
    Quality parenting: the indispensable ingredient for beneficial parenting and coparenting
    12 January 2025
    Government’s move towards shared parenting tempered with layers of bureaucracy and confusion
    20 October 2024
    Malta in bad faith at the United Nations over developments near Ggantija
    20 November 2023
    No heed paid to United Nations rules as proposal for blocks of flats near Ggantija Temples set for approval
    15 October 2023
    Report: Conservatism on parenting roles and outdated family courts damaging to children after separation
    4 April 2023
    Previous Next
  • About
  • Facebook
  • Instagram
  • LinkedIn

By Victor Paul Borg 16 May 2023 1 Min Read

Related Posts

Government gives bird trappers a probable last season

20 October 2025

Building sanctioned, fine cancelled – court’s decision undone

9 October 2025

Denser development and further legal uncertainty after policy manoeuvres designed to circumvent court decisions

22 July 2025

Legal opinion: are the policy manoeuvres on number of floors and building heights legal?

16 July 2025

Write A Comment Cancel Reply

This site uses Akismet to reduce spam. Learn how your comment data is processed.

  • Featured Articles
    • Government gives bird trappers a probable last season
    • Building sanctioned, fine cancelled – court’s decision undone
    • Denser development and further legal uncertainty after policy manoeuvres designed to circumvent court decisions
    • Legal opinion: are the policy manoeuvres on number of floors and building heights legal?
  • Special Focus Areas
    Justice on Trial Justice on Trial
    Two Homes Two Homes
    Planning Emergency Planning Emergency
  • Facebook
  • X (Twitter)
  • Instagram
  • Pinterest
  • YouTube
  • LinkedIn
  • Front Page
  • Investigations
  • Special Reportage
  • Analysis
  • Rule of Law
  • Susbcribe
  • About
  • Contact
  • Donate
  • Cookie Policy
  • Privacy Statement

© 2021/2022 Victor Paul Borg. All rights registered.

Top
JournalismPlus
  • Front Page
  • Investigations
  • Analysis
  • Rule of Law
  • Special Reportage
  • About

Type above and press Enter to search. Press Esc to cancel.

Manage Consent
To provide the best experiences, we use technologies like cookies to store and/or access device information. Consenting to these technologies will allow us to process data such as browsing behaviour or unique IDs on this site. Not consenting or withdrawing consent, may adversely affect certain features and functions.
Functional Always active
The technical storage or access is strictly necessary for the legitimate purpose of enabling the use of a specific service explicitly requested by the subscriber or user, or for the sole purpose of carrying out the transmission of a communication over an electronic communications network.
Preferences
The technical storage or access is necessary for the legitimate purpose of storing preferences that are not requested by the subscriber or user.
Statistics
The technical storage or access that is used exclusively for statistical purposes. The technical storage or access that is used exclusively for anonymous statistical purposes. Without a subpoena, voluntary compliance on the part of your Internet Service Provider, or additional records from a third party, information stored or retrieved for this purpose alone cannot usually be used to identify you.
Marketing
The technical storage or access is required to create user profiles to send advertising, or to track the user on a website or across several websites for similar marketing purposes.
  • Manage options
  • Manage services
  • Manage {vendor_count} vendors
  • Read more about these purposes
View preferences
  • {title}
  • {title}
  • {title}
Manage Consent
To provide the best experiences, we use technologies like cookies to store and/or access device information. Consenting to these technologies will allow us to process data such as browsing behaviour or unique IDs on this site. Not consenting or withdrawing consent, may adversely affect certain features and functions.
Functional Always active
The technical storage or access is strictly necessary for the legitimate purpose of enabling the use of a specific service explicitly requested by the subscriber or user, or for the sole purpose of carrying out the transmission of a communication over an electronic communications network.
Preferences
The technical storage or access is necessary for the legitimate purpose of storing preferences that are not requested by the subscriber or user.
Statistics
The technical storage or access that is used exclusively for statistical purposes. The technical storage or access that is used exclusively for anonymous statistical purposes. Without a subpoena, voluntary compliance on the part of your Internet Service Provider, or additional records from a third party, information stored or retrieved for this purpose alone cannot usually be used to identify you.
Marketing
The technical storage or access is required to create user profiles to send advertising, or to track the user on a website or across several websites for similar marketing purposes.
  • Manage options
  • Manage services
  • Manage {vendor_count} vendors
  • Read more about these purposes
View preferences
  • {title}
  • {title}
  • {title}